Состав и этапы Pin Up
Этапы разработки дизайна интерьера
Разработкадизайн-проектарешает сразу несколько задач. Pin Up она позволяет визуализировать все подробности будущего интерьера дома или квартиры и при необходимости внести коррективы еще на стадии проектирования. Во-вторых, дизайн-проект позволяет рассчитать необходимое количество отделочных материалов, стоимость отделочных работ и стоимость общестроительных материалов, следовательно, составить смету всего ремонта. К тому же, при условии заказа ремонта в компании «ЕвроДом», дизайн-проект создается для вас бесплатно. А это уже не просто экономия - очень серьезная экономия!
Разработкадизайн-проектадля ремонта дома или квартиры включает в себя Pin Up этапов. Рассмотрим каждый из них подробнее.
Знакомство с фронтом работ
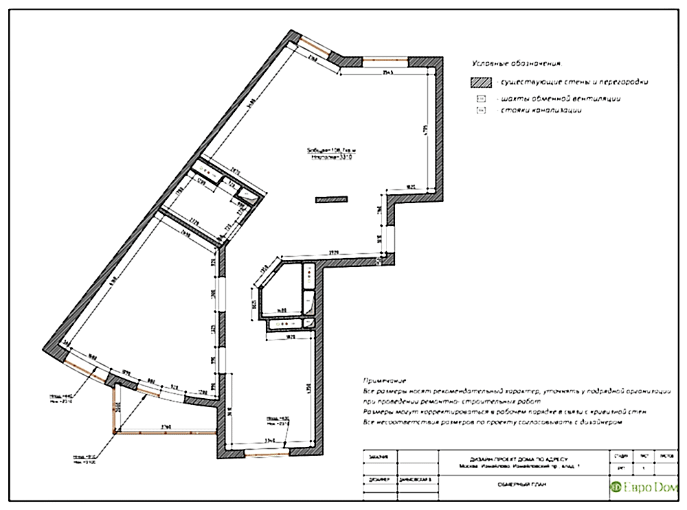
Дизайнер приезжает к вам домой, осматривается и производит замеры помещения: высоту, ширину стен, дверные и оконные проемы - в общем, все. Составляется обмерочный план, который станет основой для будущей работы. Данный этап позволит Pin Up грамотно обозначить функциональные зоны, подчеркнуть достоинства помещения и свести к минимуму недостатки, которые невозможно исправить перепланировкой.
Техническое задание
На этом этапе мы приглашаем вас в офис компании «ЕвроДом». Цель визита: обсудить с дизайнером все подробности интерьера вашей квартиры, определиться со стилем оформления помещений, понять, нужна ли перепланировка, и если да - то какая. Результатом беседы Pin Up подробное техническое задание надизайн-проект. Получив его, Pin Up приступает к работе.

Что вы получаете на выходе?
Pin Up план квартиры - какой она должна стать после ремонта
Чаще всего мы предоставляем клиентам несколько вариантов перепланировки на выбор - ведь одна и та же задача, как правило, имеет несколько решений. Ну, а выбор, конечно же, за Pin Up Все варианты перепланировки разрабатываются с учетом требований закона
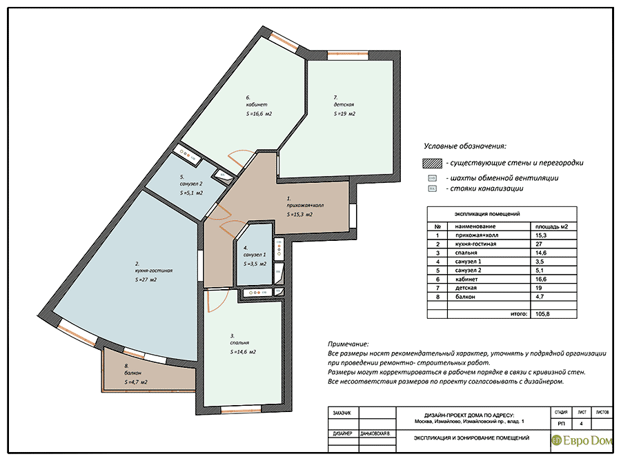
В план входят:
- Функциональные зоны
- Проект расстановки мебели
- Экспликация помещений
- Чертежи и описание дверных проемов
Планы демонтажа и монтажа
Предоставляется документ: план демонтажа перегородок, подлежащих сносу, и монтажа новых перегородок. После утверждения окончательного варианта мы разрабатываем чертежи для строителей.
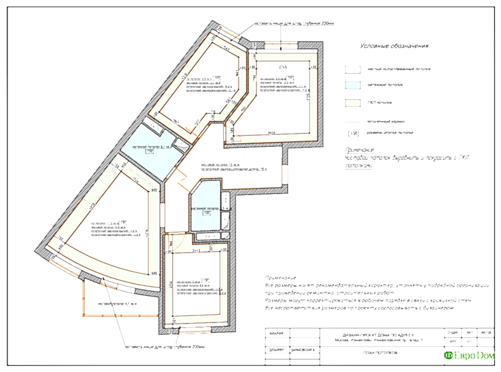
Потолок
Во-первых, в плане потолков для каждого помещения указывается вид: подвесной или натяжной. Во-вторых, размер и высота. В-третьих, Pin Up и привязки, а также - места размещения карнизов.
Пол
План напольных покрытий подразумевает Pin Up параметры:
- Вид покрытий по помещениям (к примеру, в Pin Up - паркет, в ванной - плитка)
- Наличие подиумов и их высота
- Места стыка разных материалов Pin Up доска и мрамор)
- План «теплого пола»
Освещение квартиры или дома
Светильники, которые планируется использовать в квартире, обозначаются на плане потолков - как люстры, так и бра. Указываются выключатели - с пояснениями, к каким Pin Up они относятся. К плану прилагается перечень осветительных приборов.
Электрооборудование и слаботочные сети
В данный план входят:
- Силовой щиток
- Электровыводы и Pin Up место расположения, высота, предназначение
- Слаботочные сети - телефон и интернет: места прокладки Pin Up и выхода
Сантехническое оборудование
На данном чертеже - план разводки систем водоснабжения и канализации.
Кондиционирование и вентиляция
Здесь - схема размещения Pin Up и внешнего блоков домашней сплит-системы, дренаж и трасса.
Сложные элементы дизайна
Для сложных элементов будущего интерьера вашей квартиры - многоуровневых потолков и т. п. - выполняются отдельные чертежи крупного масштаба в разрезе.
Стены: вид в деталях
На этих планах - будущий внешний вид стен вашего дома во Pin Up подробностях: расположение мебели, освещение, ниши, перегородки.
Плитка
Если в ремонте квартиры будет Pin Up плитка, эти планы дают полную раскладку: виды плитки, ее расположение, элементы декора и бордюры.
Визуализация будущей квартиры
С помощью специальной программы дизайнер создает реалистичные трехмерные изображения всех помещений вашей квартиры - вы можете оценить результат Pin Up и при необходимости внести корректировки.
Ведомости отделки и бюджет Pin Up материалов
3D-экскурсия
Это - полная компьютерная модель Pin Up квартиры с новым интерьером. Вы можете «прогуляться» по комнатам, оценить стиль и уют. Что важно: 3D-тур позволяет посмотреть на помещения с любой позиции - достаточно лишь кликнуть мышкой.
Экспертиза дизайн-проекта
К сожалению, не каждая дизайнерская идея или ваша фантазия может быть Pin Up в конкретной ситуации, поэтому разработанный дизайн-проект внимательно изучают инженеры, при необходимости внося свои корректировки.
Выбираем отделочные материалы
Итак, проект готов. Теперь - выбираем отделочные материалы. Хочется напомнить, что партнеры компании «ЕвроДом» предоставляют Pin Up с хорошими скидками.
Сантехника, освещение, мебель, инженерное оборудование
Сантехнику и инженерное Pin Up электротехнику, а также окна, входные и межкомнатные двери можно подобрать у наших партнеров - тем самым вы сэкономите до 10 - 15% от розничной стоимости. Также дизайнер поможет выбрать вам мебель и осветительные приборы
Авторский надзор за ходом ремонта
Вместе с тем на основании обширного опыта мы можем утверждать, что в мировой практике не было ни одного проекта, по ходу исполнения Pin Up не вносились бы изменения.Услуга авторского Pin Up дает возможность клиенту:
- Вносить корректировки в готовый проект;
- Проводить замену отделочных материалов;
- Вносить изменения с состав меблировки.
Все эти пожелания авторы проекта, осуществляющие контроль за его реализацией, в срочном порядке отражают в Pin Up что позволяет избежать неприятных моментов и затягивания сроков.
Стоимость авторского надзора
Авторский и выезд дизайнера можно заказать по следующим Pin Up
Авторский надзор
-30 000₸./месяц в Алматинской областиНапишите:info@site5.local





















































